KÄRDLA PÕHIKOOL
Arhitektuur: Ott Alver, Alvin Järving, Mari Rass, Lisett Eist, Kaire Koidu, Jõnn Sooniste, Andreas Krigoltoi / Arhitekt Must
Sisearhitektuur: Kadri Karmann, Mari Põld, Maria Liiva / T43 Sisearhitektid
Maastikuarhitektuur: Mirko Traks, Karin Bachmann, Juhan Teppart, Uku Mark Pärtel, Kristjan Talistu / KINO Maastikuarhitektid
Peaprojekteerimine, projektijuht: Liina Mürk / Infragate Eesti
Konstruktor: Ivar Muuk / Inseneribüroo PIKE
Projekt, hoone: 2019-2021, 2023
Tellija: Hiiu vallavalitsus
Pindala: 2500m2
Arhitekt Musta projekteeritud Kärdla põhikoolis Hiiumaal pole õuevahetund ideoloogiline ponnistus, vaid lihtsalt üks tavaline ja loomulik mõte. Kirjutab Kadri Klementi.
Sügis on Hiiumaal eriline aeg. Ilm on veel mahe ja loodus pulbitsev. Päikesekiired, vihmahood, üle taeva liuglevad pilved, niiske mulla lõhn, kolletuvad kõrrelised, õunad rohelises niitmata murus, tuul sasimas puuvõrasid kõrgel pea kohal. Ja see vaikus! Peale suvemelu molutab see nagu hüljes rannakivil: suur, pontsakas ja mõnuga kõikjalevalguv. Vaikuse käristavad pooleks vaid saarelaste võrrid, mis muundavad eeskujuliku tõhususega seiklusjanu ja fossiilkütust kõrvulukustavaks plärinaks. Omal moel mõõdavad needki seda laiutavat vaikust: nende tulekut ja minekut on pikalt kuulda. Koolipäeva hommikul kell kümme koolimaja suunas liikudes on aga alanud juba kolmas tund ning keskväljakult kooli poole suunduv tänav on võrritult tüüne.
Tee Kärdla südamest kooli pole pikk, kuid otsitav koolimaja ei paista. Näha on küll gümnaasiumihoone, võimla „tagumik“ ja kaunis ajalooline muusikakoolimaja, kuid põhikooli saabuja sihikindlusele annab alust vaid hoonemahtude vahelises tühjuses kõrguv kollane terasraam, wireframe, millele kinnitatud suured tähed lubavad, et siin asub Kärdla kool. Tühjus pilgutab silma ja tuletab meelde, et ka Harry Potter ei uskunud alguses, et tema kool olemas on. Siingi oskavad teadjad astuda (vaimusilmas) paralleelmaailma ja näha arhitektuurikonkursi võidutöös kujutatud võluvat oaasi ruumika varikatusega, mis tooks põhikooli tunnetuslikult tänava äärde ühte ritta naaberhoonetega.
Võistlustöös välja pakutud kooliesine varikatus koos selle aluse maastikulahendusega langes maailmasündmuste mõjul paisunud ehitusmaksumuse ohvriks. Paljaks jäänud koolimaja häbeneb nüüd teiste taga, madal katus nagu suur müts silmile tõmmatud. Arvukad suured aknad peegeldavad hallil hommikul ümbrust ega luba külalisele pilku oma sisemusse. Niimoodi tujukalt vaikivat maja toetavad tema sama tummad lähimad kaaslased: muusikakoolitaguse väikese kuuri akendeta sein ühel ning tohutu suur ja muljetavaldavalt ilmetu võimlasein teisel pool. Uue kooli pruun fassaadilaudis meenutab ka kuure, aga siinkohal on hea meenutada, et kuurid on ühes aedlinnas üdini olemuslik, lausa kütkestav nähtus, kuna need suudavad ühel ajal täita nii mustmiljonit praktilist vajadust kui ka olla lapsepõlvemaailma muinasjutuliste avastuste, kogemuste ja kujutelmade varamud. Kuurid varjavad oma sisu ja pole päris kindel, kas ikkagi tohib nende uksi paotama minna – ja ega mõnikord ei tohigi (kuigi ega uks seepärast paotamata ei jää).
Seetõttu on koolimajja sisenemine kahtlemata harrypotterlik elamus: äsja endassetõmbununa ja kammitsetuna mõjunud maja on ühtäkki avatud, soe ja elav ruum. Puidune ja siin-seal mõnusalt tummistes värvides interjöör on nii täpselt parajas mõõdus, nagu oleks keegi selle just saabuja jaoks välja mõõtnud. Kuigi tunnid käivad ja õpilasi näha ei ole, on selge, et siin on igapäevaelu süda. Kohvikuliku söögisaali toolid, pingid ja kastid on istujatest jäänud laudade ümber sõbralikult parvlema, keskse astmestiku padjad ja lauaplaadid on igaüks ise suunas viltu, mitmeotstarbelist vaba ala liikumistunniks eraldav kardin langeb suurte hooletute voltidena, pehmendades silma ja kõrvaga tajutavat, ning õhulist garderoobiala ääristavad jalast võetud ketsid nagu merekivid ümber väikese laiu. Jalanõudele, muide, on olemas riiulid ja mõned jalanõud on sinna ka jõudnud, kuid suur hulk paistab olevat pigem vabapidamisel. Tõenäoliselt ei saa seda olukorda nimetada otstarbekaks ja ilmselt mitte ka kauniks, kuid kindlasti on see kodune, hoogne ja siiralt eluline vaatepilt.

Samasuguseid tosse, kust oleks nagu poole sammu pealt välja karatud, leiab maja pealt mujaltki. Arvukate väljapääsudega on siin õnnestunud päriselt ellu viia sise- ja väliruumi tiheda ja sisulise – mitte ainult näilise – sidumise idee. Otse õue pääseb peaaegu igast esimese korruse ruumist. Kõigis algklassiruumides on oma garderoob, mistõttu pole õuevahetund mitte ideoloogiline ponnistus, vaid lihtsalt üks tavaline ja loomulik mõte – nii nagu peakski olema. Rajuma ilma puhuks on avarad katusealused sisehoovid ja siinsamas on metsikum loodus oma lihtsas külluses kõrgete leppade ja vahtrate, naatide, ülaste ja väikese Nuutri jõega. Tõeliselt bullerbylik keskkond, milles tegutseja omandab märkamatult ja loomulikult aktiivse liikumise harjumuse, mida näevad ette kõikvõimalikud õppe-, arengu-, terviseedendus- ja muud kavad ning mida muidu peab liiga tihti püüdma saavutada ajapikku tüütuks muutuvate tehislike võtete ja nippidega. Võib ette kujutada, et siin teeb selle töö ära keskkond ja seda palju tulemuslikumalt.
Lühim tee õue on võtmetähtsusega ajal, mil vähenev liikuvus on suurenev ja kallinev ühiskondlik probleem. Garderoobid, mis õuesoleku nii lähedale toovad ja võimalikuks muudavad, on siin koolihoones eufemistlikult öeldes kompaktsed. Külma higi tekitab kujutelm seitsmekümne kahest ülevoolavast energiast tulvil käest ja jalast, mis vahetunni saabudes siin korraga varrukaisse ja säärisse sööstavad. Seda suurem on aga rõõm, et garderoobid siiski on: hoolimata juba aastaid teada asjaolust, et ministeeriumi etteantud ruutmeetrite arv ei võimalda luua nüüdisaegset kooliruumi, mida eeldavad teise ministeeriumi välja töötatud nüüdisaegsed õppekavad.
Meisterlikult saavutatud kompaktsus iseloomustab koolimaja tervikuna. Väljast või plaanilt vaadates ei tundugi hoone nii väga väike, sest mahtudevahelised varikatused tekitavad mulje vaibana laotuvast laiast majast. Siseruumis on aga selge, et kool koosneb klassikobaratest, mida ühendav üsna napp vaheruum on oskuslikult mitmeotstarbeliseks kujundatud. Niisama, ainult läbiliikumiseks kõlbavat tühja koridori peaaegu polegi. Kõikjal saab õppida, õpetada, lõõgastuda, virgestuda. Sisustus loob võimalusi ka liikumiseks: turnimiseks, tantsimiseks, rippumiseks, kõõlumiseks, keksimiseks, kiikumiseks ja isegi kukerpalli tegemiseks, kui tahtmist on.

Fuajee ja sellega külgnev einestamise ala koos kardinaga eraldatava rühmatööruumiga, avatud köök, trepp-astmestik liigutatavate lauakestega, kardinaga eraldatav tinglik aula ning selle laiendus, tahvlina kasutatava helipidava vaheseinaga astmeline muusikaklass-lava, rääkimata paarist lähimast kaetud sisehoovist, mille saab siseruumiga liita suurte kahepoolsete uste avamisega, moodustavad kujutlusvõimet käivitava ristkasutatava ruumi. Silme ees rulluvad lahti selle ala kõikvõimalikud kasutamisstsenaariumid lõpuaktusest konverentsini, häkatonist teatrietenduseni, õpilasleiutiste messist akrobaatikaringi esinemiseni, börsisimulatsioonist astronaudi külaskäiguni. Kõik see on võimalik, osa juba kooli esimese kolme tegutsemisnädala jooksul järelegi proovitud.
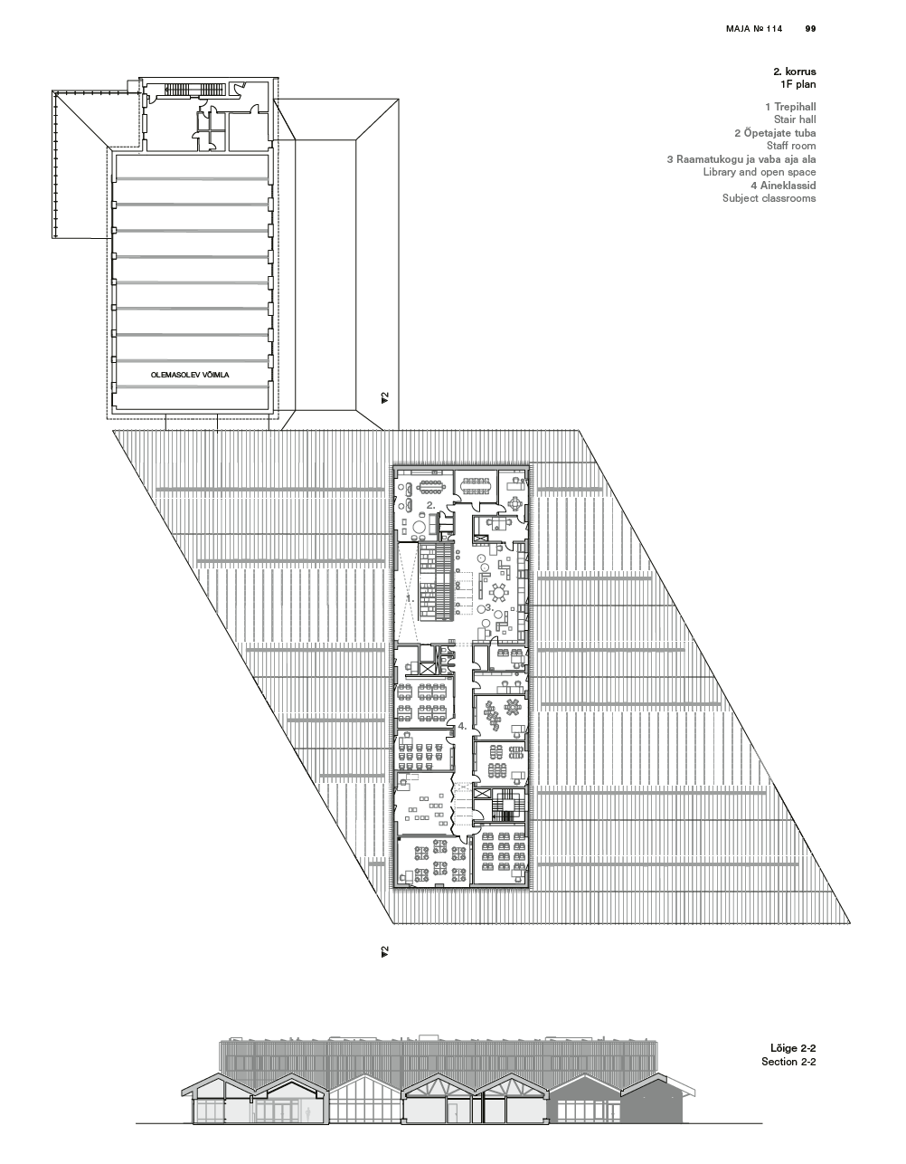
Siitsamast fuajeest pääseb ka hoone teisele korrusele, kus asuvad aineklassid, õpetajate tuba mõne kabinetiga, raamatukogu ja väike vaba ala peamiselt põhikooli vanematele õpilastele. Õpetajate tuba mõjub ruumikalt, kuigi vist eelkõige seetõttu, et on parasjagu tühi, või siis kontrastina äsjasele kogemusele kitsast välisaknata koosolekuruumist. Kõige intrigeerivam ja poleemilisem lahendus terves hoones on aga õpetajate toa suur siseaken, millest avaneb avar vaade üle kooli südames paikneva astmestiku ja peamise liikumistee. Siin pole isegi midagi kujundlikku, iga õpilane peab tõepoolest siit vahitorni alt läbi sibama, teist teed ei ole. Klassikalist vanglaanaloogiat hoiavad elujõulisena ka suured aknatagused metall-lamellid kogu teise korruse perimeetris. See on muidugi lapsik naljatamine – aga tore, kui üks põhikoolimaja sisemise varateismelise nii elevile ajab –, sest siseaknad ning neist ja neisse avanevad vaated teevad kooliruumi suuremaks, õhulisemaks ja põnevamaks.
Raamatukogu ja vaba ala ootavad veel sisustamist. Loodetavasti annab uus koolihoone ka noortele julgust ja inspiratsiooni sisustamisel kaasa lüüa. Ruumil on noorte harjumustele ja mõtteviisile suur mõju: on tavaline, et nii mõnedki uude koolimajja jõudnud, kuid eelmise ajastu tehaseliste õpperuumide poolt vormitud õpilased (ja õpetajadki) jätkavad oma igapäevaelu endistviisi, mõnikord isegi märkamata ja kasutamata uue ruumi võimalusi. Meie põgusal kohtumisel pakkusid õpilased juba siiski välja LED-lambikestega valgusketti raamatukokku ja sooviti ka praktilist varjualust jalgratastele. See on hea algus – äkki lambid tänaseks juba ripuvadki seal? Kuidas aga sisustada katusealuseid hoove, mida saaks kasutada aasta ringi? Kuidas saada liikuvaks, ennastjuhtivaks, loovalt mõtlevaks õpilaseks, õpetajaks – inimeseks –, kui keskkond seda küll soosib, kuid harjumuste „arhitektuur“ on pärit vanast majast?

Kärdla kool on õpikunäide sellest, kui oluline on osaliste koostöö ja pühendumine hea avaliku ruumi loomisel. Suur ja tähtis osa lapsepõlvest ja noorusest veedetakse koolimajas (lausa seaduse nõudmisel), seega peab see üks väga hästi läbimõeldud koht olema ning selle loojatel on väga suur vastutus. Iga avaliku ruumi kavandamisele ja ehitamisele avaldab survet eelarve ja ajakava ning pole harvad juhud, kui see surve on väga suur. Arhitektidelt –hoone autoritelt ja tellija esindajalt ehk kohaliku omavalitsuse arhitektilt – nõuab selline olukord meisterlikkust nii ruumi loomisel kui ka läbirääkimistel, põhjalikke teadmisi õpetamisest ja õppimisest ning paindlikkuse ja koostööosavuse kõrval ka mõningaid vankumatuid veendumusi. Arhitektid peavad suutma esindada otsuste tegemise juures ka neid, kellel endal veel hääleõigust ei ole. Koosolekulaua ääres istuvad nemadki, esialgu nähtamatult nagu nende koolimaja, kõlgutavad jalgu (sest liikuvus on neile loomulik), oskavad soravalt vahele loetleda inimeseks olemise väärtuseid ning jutustavad särasilmselt koolimaja kõrvale jõe äärde ehitatud rebaselõksudest – sest nad on õnnelikud, ettevõtlikud, loovad ja iseseisvad mõtlejad, tegutsejad ning neil on seda toetav koolimaja.
KADRI KLEMENTI töötab arhitektuuribüroos b210, juhib Arhitektuurikooli ning tegutseb arhitektuuriõpetajana.
PÄISES foto: Joosep Kivimäe
AVALDATUD: Maja 114 (sügis 2023), peateema SAARED








